Project:
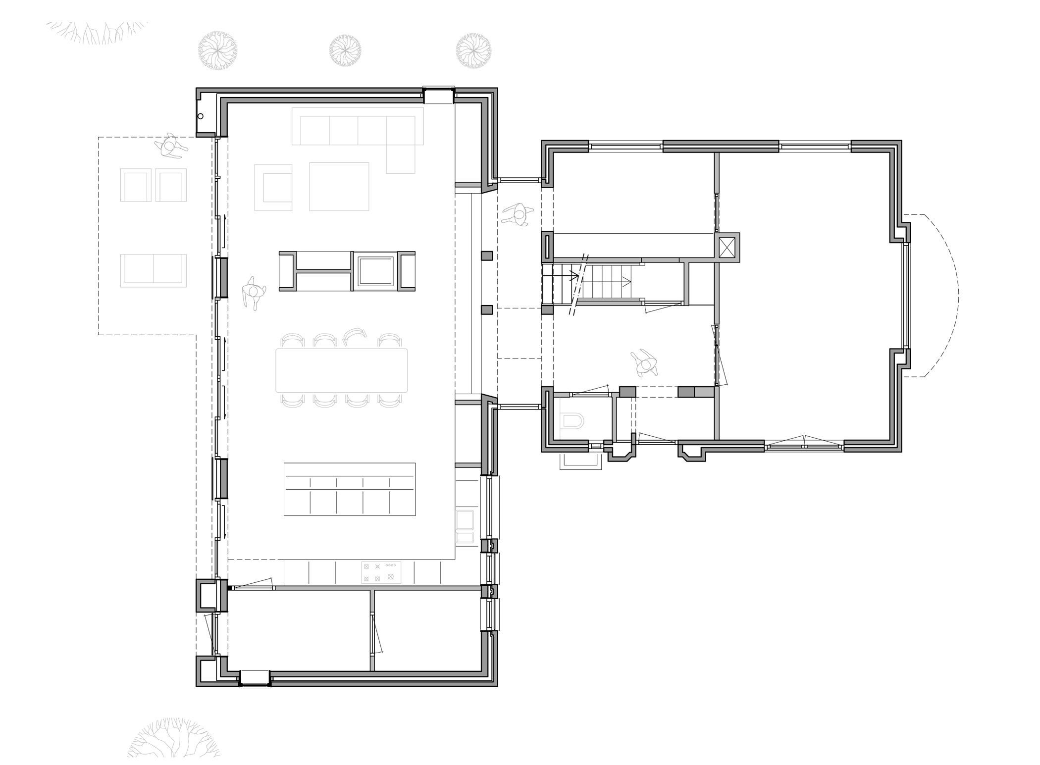
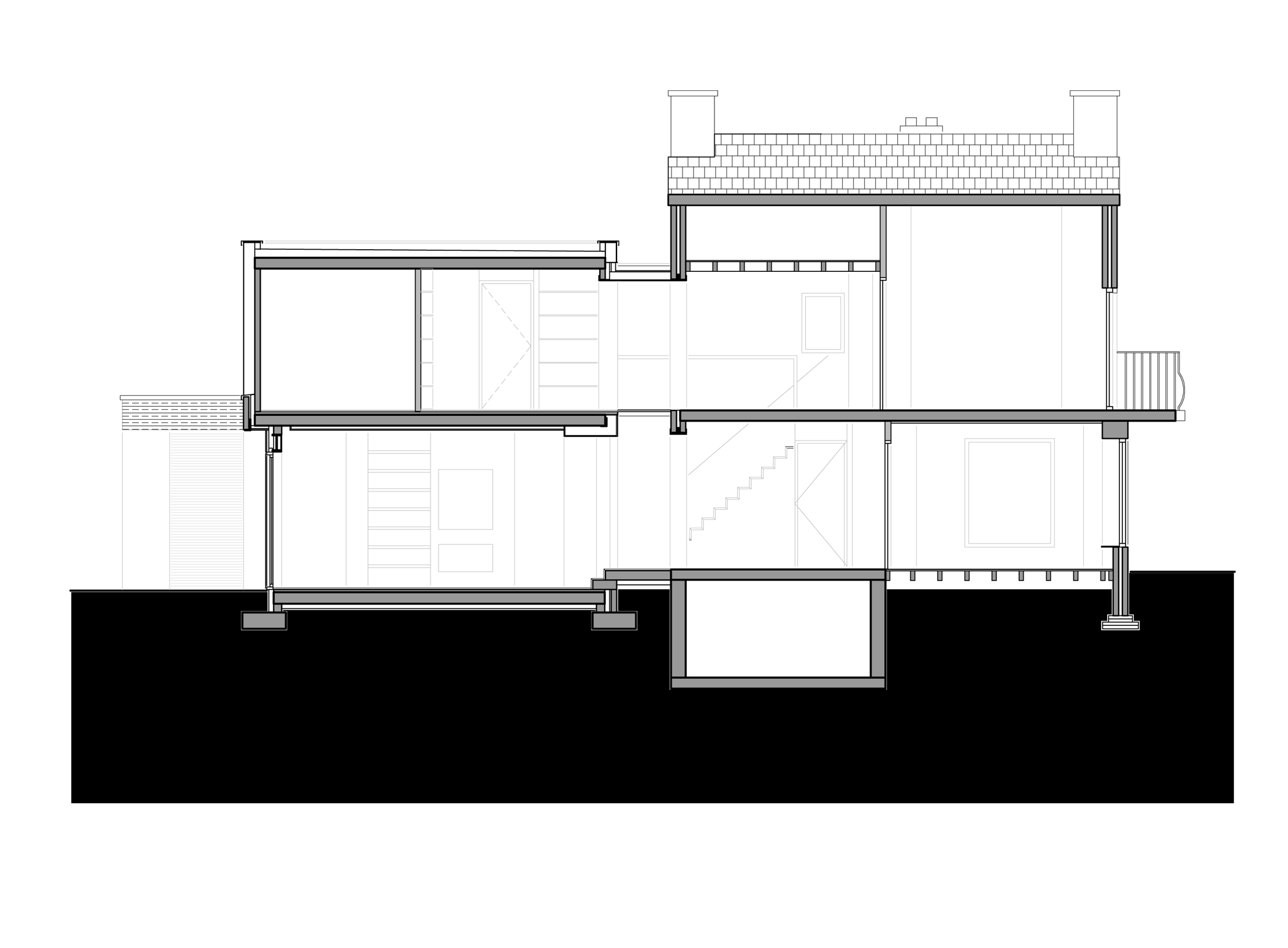
Verduurzaming & uitbreiding 'Villa De Reinaert'
Verduurzaming & uitbreiding 'Villa De Reinaert'
Locatie:
Vught
Opdrachtgever:
Particulier
Particulier
In samenwerking met:
No items found.
Prijzen:
No items found.
Foto's:
No items found.
PDF
Sluiten
Sluiten
PDF
No items found.