50
+31 (0)73 - 642 12 26
project:
Verduurzaming & vernieuwing appartement

locatie:
Amsterdam

opdrachtgever:
Particulier




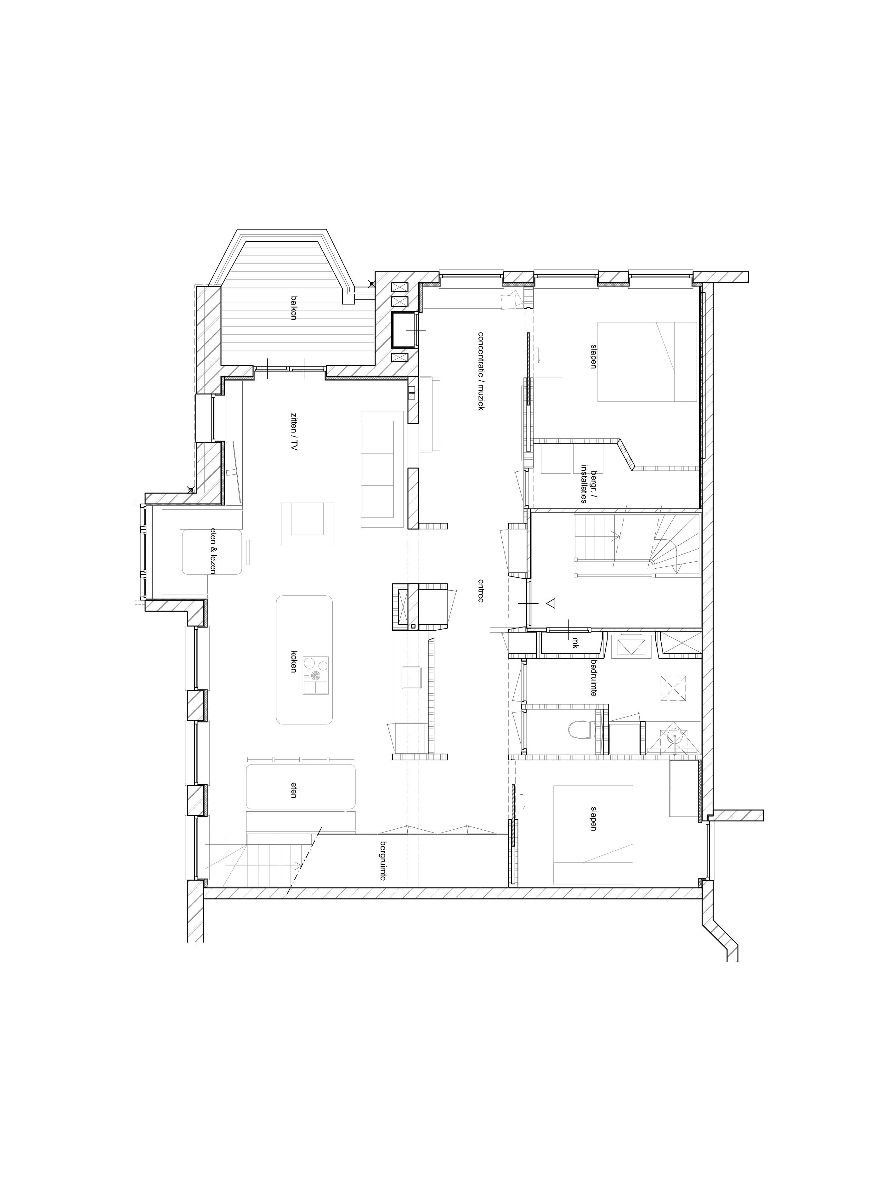
Het oorspronkelijke 2 laags appartement had een 'hokkerige' structuur  en de ruimtes waren niet in de gewenste verhouding. Een dragende wand zorgde voor een enorme hal, een kleine weggestopte keuken en nog kleinere inpandige badkamer en toilet.

De opdrachtgevers wilden een licht 'loft achtig' appartement  met voldoende (berg)ruimte en privacy voor 2 volwassen kinderen. En een plek om samen te koken en muziek te maken.
Het appartement is opnieuw ingedeeld als een vloeiende doorlopende ruimte. Met de grote schuifdeuren kunnen de kinderen zich gedeeltelijk of volledig afzonderen. In de dragende wand zijn 2 doorzichten gemaakt voor zicht op de voordeur extra contact.

De trap is gespiegeld waardoor een ruime berging onder de trap gemaakt kon worden en een 'zee van licht' van boven naar beneden komt. De buitenwanden zijn voorzien van biobased isolatie met een leemstuc. Voor de hybride installaties (voorbereid op volledig gasloos) is een bergruimte toegevoegd. Dit leverde in de badkamer extra ruimte op en samen met een toegevoegd daklicht voelt de badkamer een stuk ruimer aan. De badkamers en toilet zijn afgewerkt met Mortex (materiaalbesparing) en ontworpen met slimme bergruimte. Het kleurenpallet is afgestemd op meeverhuisde elementen en geeft elke ruimte een eigen sfeer.

De ruime gang heeft de functie van muziekkamer gekregen en het kookeiland, gemaakt van Haags Iepenhout is het  'centerpiece'  van de woonkamer.



Web Page Maker, create your own web pages.