50
project:
nieuwbouw kantoorgebouw 'Artiqua'

locatie:
's-Hertogenbosch

opdrachtgever:


+31 (0)73 - 642 12 26
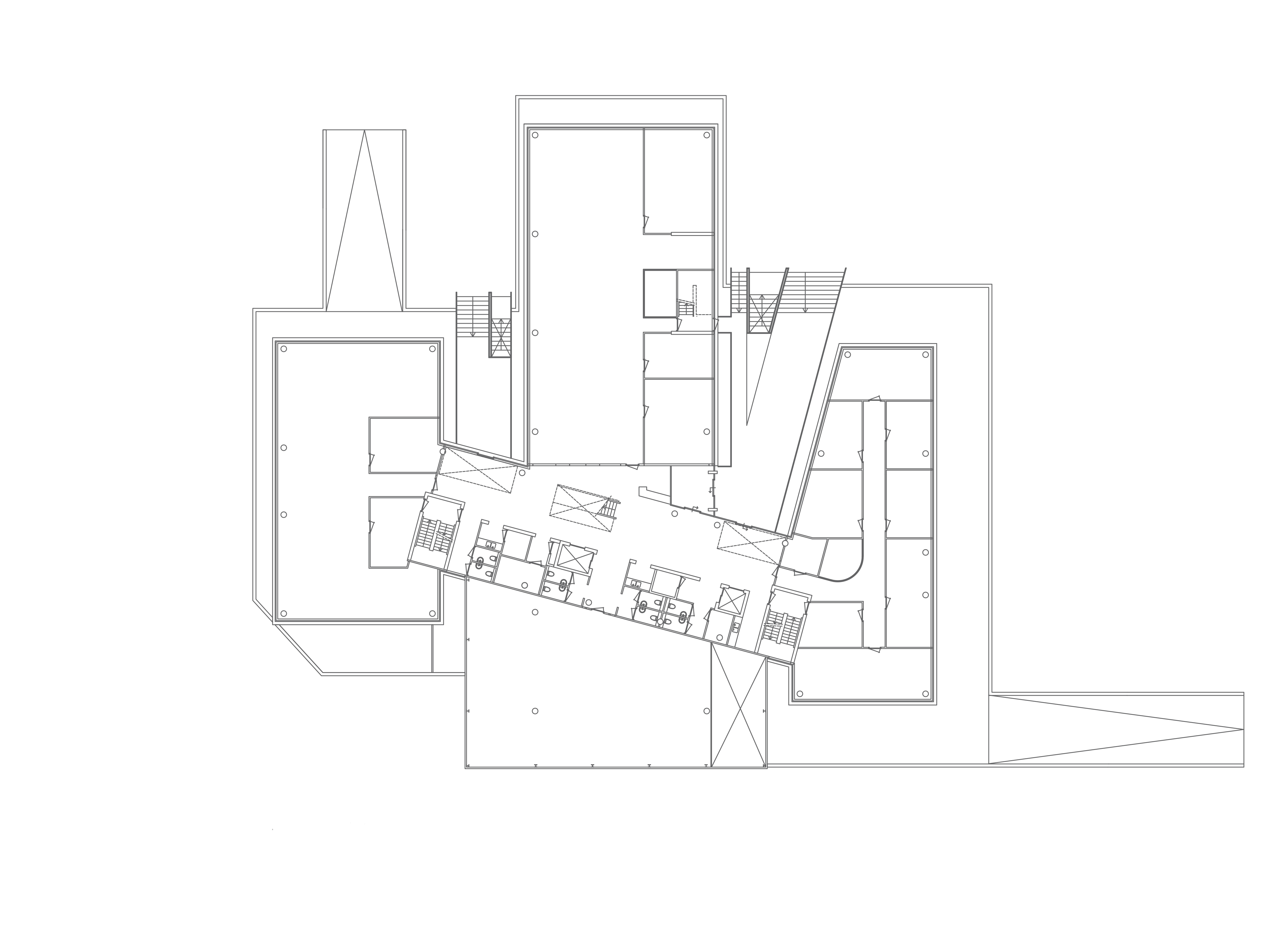
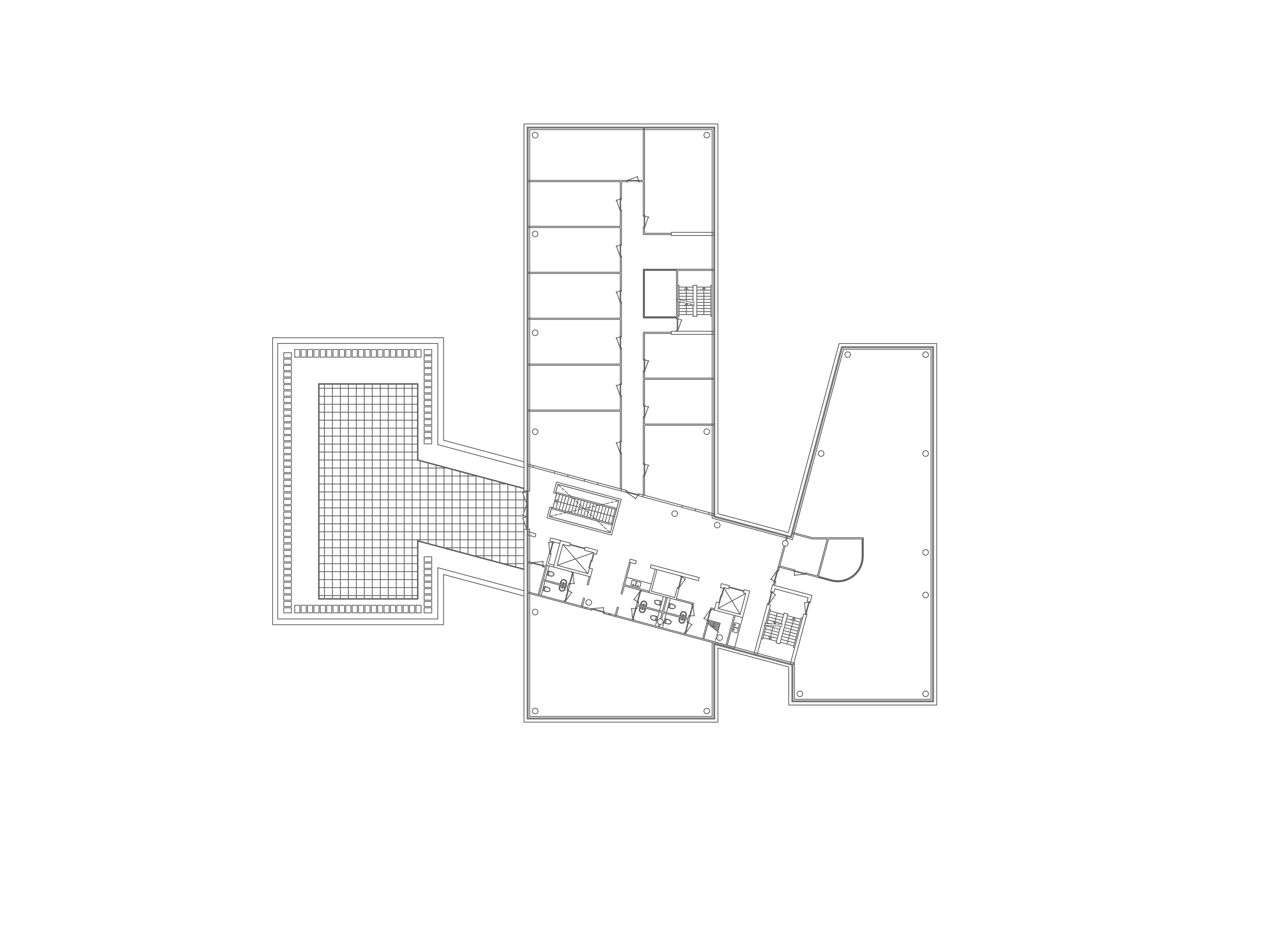
Het gebouw Artiqua is het gezicht van bedrijventerrein 'De Brand' gezien vanaf de A2.
Bij de ontwikkeling legde de gemeente 's-Hertogenbosch de lat hoog. Voorop stond dat het een 'menselijk' bedrijventerrein moest worden, waar de medewerkers van de gevestigde bedrijven graag werken en verblijven. Het terrein is harmonieus ingepast in het landschap met berken die verwijzen naar het voormalige beekdal op deze locatie. Ook het gebouw heeft een menselijke maat, is alzijdig uitnodigend, flexibel en multifunctioneel in gebruik. Bij de hoofdentree opent het gebouw zich naar de A2. Door het parkeren half verdiept te maken lijkt het gebouw te zweven. De huurders maken gebruik van een centrale gemeenschappelijke ruimte die ruimte biedt voor ontvangst en ontmoeting en samenwerking stimuleert. Het gebouw kan opgedeeld worden per vleugel en per laag zodat het geschikt is voor 1 tot 11 huurders. De prefab constructie zorgt niet alleen voor een vrije indeelbaarheid maar zorgde ook voor een minimale bouwtijd. Op enkele plekken is de borstwering onderbroken voor extra zicht op de groene omgeving. De gevel krijgt diepte en textuur door de glaspanelen met speciaal ontworpen zeefdruk. Deze omspannen de constructie als een doorlopend lint en geven het gebouw een herkenbaar karakter en  'hi-tech' uitstraling.


Web Page Maker, create your own web pages.